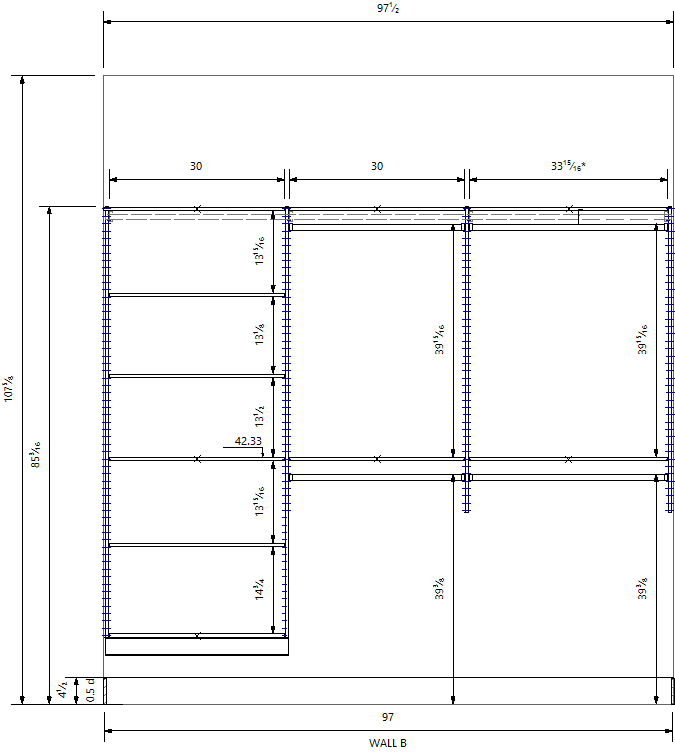
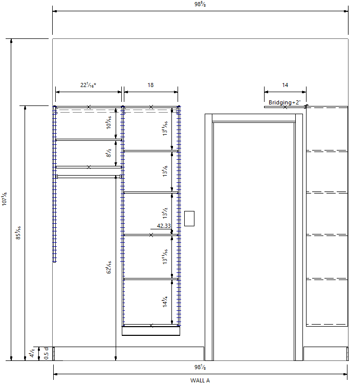
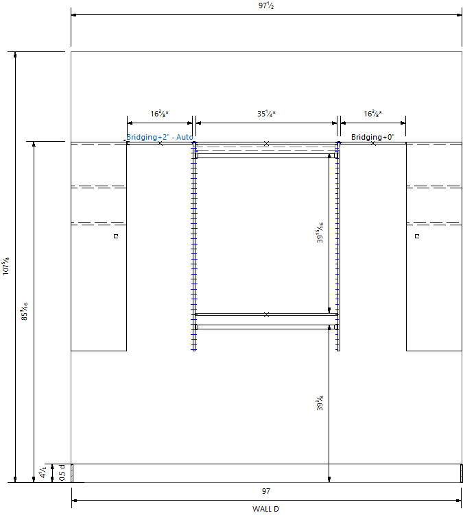
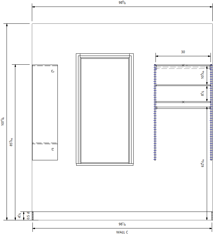
Drawings generated Using ClosetCADPro www.3dcadsoft.com www.closetcad.net